Modern House-38

Характеристики

Тип дома: Modern House
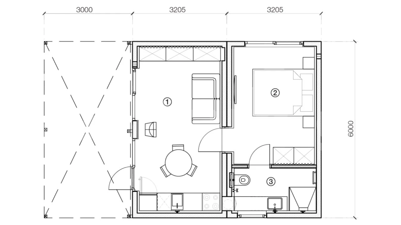
Габариты: 6x6.2 м
Площадь: 38 м²
Этажей: 1
🛏️ Спален: 1
🚿 Санузлов: 1
Материалы:
🏗️ Дерево
✨ Дизайн интерьера включён
Цена:
от $500 за м²
Заказать

📐 Планировка

Планировка 1

🏗️ Материалы

Наружные стены

Наружные стены

1. Наружная отделка (планкен).
2. Обрешетка.
3. Контробрешетка.
4. Ветрозащитная плита 25 мм.
5. Стойки каркаса.
6. Утеплитель (минеральная вата).
7. Пароизоляция.
8. Контробрешетка.
9. Внутренняя отделка (вагонка или имитация бруса).

Крыша

Крыша

1. Покрытие - фальцевая сталь (кликфальц).
2. Обрешетка.
3. Контробрешетка.
4. Ветрозащитная плита 25 мм.
5. Стропила.
6. Утеплитель (мин.вата).
7. Пароизоляция (плёнка в комнате отдаха, фольга в парной).
8. Контробрешетка.
9. Внутренняя отделка (вагонка или имитация бруса).

Пол в прихожей, гостиной

Пол в прихожей, гостиной

1. Опорные доски.
2. Ветрозащитная плита 25 мм.
3. Утеплитель (мин. вата) между лагами пола.
4. Пароизоляционная плёнка.
5. Чёрный пол - фанера 12 мм.
6. Чистовое покрытие пола (паркетная доска или ламинат).

Пол в сан. узле

Пол в сан. узле

1. Опорные доски.
2. Ветрозащитная плита 25 мм.
3. Утеплитель (минеральная вата) между лагами пола.
4. Пароизоляционная плёнка.
5. Чёрный пол - фанера 12 мм.
6. Гидроизоляция.
7. Выравнивающая стяжка (из ГВЛВ или цементно-песчаная).
8. Чистовое покрытие пола (керамическая плитка на клею).

← Назад

Заинтересовал проект? Оставьте заявку